
提升高度:28-40m
輸送量:8-120m3/h
應用范圍:碳酸鈣粉碎加工、石膏粉加工、電廠脫硫、非金屬礦制粉、煤粉制備等。
適用物料:石灰石、方解石、碳酸鈣、白云石、重晶石、滑石、石膏、輝綠巖、石英石、膨潤土等。
全國24小時銷售熱線:
0371-666 99 708斗式提升機采用流入式喂料、誘導式卸料、大容量的料斗密集型布置.在物料提升時幾乎無回料和挖料現象,因此無效功率少。
先進的設計原理和加工方法,保證了整機運行的可靠性,無故障時間超過2萬小時。提升高度高。提升機運行平穩,因此可達到較高的提升高度。
該提升機對物料的種類、特性要求少,不但能提升一般粉狀、小顆粒狀物料,而且可提升磨琢性較大的物料,密封性好,環境污染少。
斗式提升機的喂料采取流入式,無需用斗挖料,材料之間很少發生擠壓和碰撞現象。本機在設計時保證物料在喂料、卸料時少有撒落,減少了機械磨損。
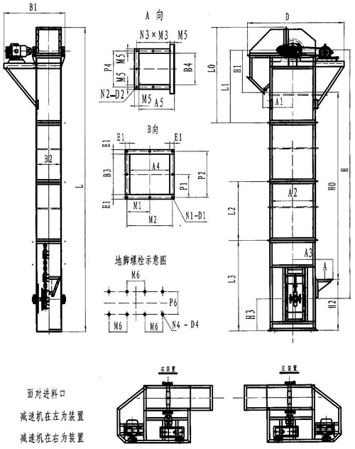
料斗把物料從下面的儲藏中舀起,隨著輸送帶或鏈提升到頂部,繞過頂輪后向下翻轉, 斗式提升機將物料傾入接受槽內。帶傳動的斗式提升機的傳動帶一般采用橡膠帶,裝在下或上面的傳動滾筒和上下面的改向滾筒上。鏈傳動的斗式提升機一般裝有兩條平行的傳動鏈,上或下面有一對傳動鏈輪,下或上面是一對改向鏈輪。斗式提升機一般都裝有機殼,以防止斗式提升機中粉塵飛揚。

| 規格 | 大提升高度(m) | 輸送量(m³/h) | 斗距(mm) | 電機功率(kw) |
| 200型 | 28 | 8-15 | 500 | 3-5.5 |
| 250型 | 30 | 10-25 | 500 | 4-7.5 |
| 300型 | 30 | 25-35 | 500 | 5.5-11 |
| 315型 | 40 | 30-40 | 512 | 5.5-15 |
| 400型 | 40 | 45-60 | 512 | 11-22 |
| 500型 | 40 | 65-80 | 512 | 15-30 |
| 630型 | 40 | 100-120 | 688 | 18.5-37 |








保存圖片加微信咨詢
版權所有 ? 鄭州中森智能設備有限公司 電話:0371-66699708 手機:13838062088 網址:www.zhunzhang.cn 豫ICP備19006151號
版權所有 ? 鄭州中森智能設備有限公司